Проектирование системы пылеудаления следует начинать с определения места закладки основной магистрали, по полу или под потолком. Этот выбор зависит от многих факторов: пересечения с другими инженерными сетями, наличия непроходимых конструкций (балок, колонн и т.д.), степени готовности объекта (например, стяжка уже залита) и других ситуаций. Чаще всего пневмотрасса закладывается в пирог пола. У этого решения есть ряд преимуществ. Во-первых, наружный диаметр трубы равен 52мм, и она как раз вмещается в уровень утеплителя, а сверху просто заливается стяжкой. Пневмомагистраль не крадет в таком случае высоту потолков. Во-вторых, с точки зрения сложности монтажа и расхода материала. Из-за того, что пневморозетки размещаются на одном уровне с обычными электрическими розетками, то есть 25-35 см от пола, приходится делать меньше вертикальной штробы. В-третьих, нет необходимости ждать лишние секунды после уборки, чтобы собранный мусор поднялся к потолку. Но у монтажа в стяжке пола есть и один недостаток. Это необходимость приглядывать за целостностью трассы вплоть до залития стяжки. Когда труба лежит на полу, ее могут повредить строители, уронить инструмент, поставить на нее леса, или просто просверлить при креплении фольги. Поэтому идеально, когда после монтажа пылесоса следом укладывается пеноплекс и заливается стяжка. Когда же пневмотрасса ведется по потолку, риски ее повреждения гораздо ниже. Тут подвержены угрозе только вертикальные участки трубы, скрытые в стенах. Поэтому рекомендуется или отмечать на проекте, или фотографировать точное расположение труб в стенах до штукатурки. Впрочем, это касается всех инженерных сетей в доме.

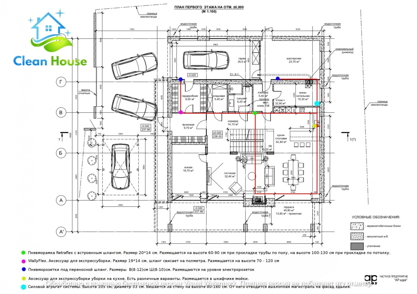
Определившись с плоскостью укладки встроенного пылесоса, нужно расположить пневмоточки по дому. Количество и места расположения зависят от выбранной длины шланга. В этом вопросе какие-то четкие правила и предписания отсутствуют, шланг подбирается индивидуально для каждого объекта. С одной стороны, хорошо, когда много розеток – значит можно взять более короткий, удобный шланг. Но в таком случае, его придется часто переподключать, с ним сложнее обходить мебель и другие препятствия. С другой стороны, более длинный шланг подключил, и пропылесосил пол дома за раз. Но его сложнее переносить, скручивать-раскручивать. Поэтому нужно искать компромисс, все зависит от планировки жилища. Для дома большой площади с просторными комнатами, широкими длинными лестницами подбирается шланг подлиннее, для зданий меньшей площади, с большим количеством комнат, проемов и перегородок, лучше сделать больше розеток и выбрать меньший шланг. В любом случае, основное требование – уборочный шланг встроенного пылесоса должен доставать в любую точку дома. Как уже говорилось, пневморозетки располагаются на такой же высоте, как и электророзетки. Они не должны закрываться мебелью, дверями, какими-то другими предметами, должны быть всегда «под рукой» и легко доступны. По ширине стены их, как правило, размещают или по центру простенка, или привязывают к оси выключателей. Не рекомендуется делать пневморозетки рядом с электророзетками, по дизайну они вряд ли идеально совпадут, а «мозолить» глаз будут все время. Желательно, чтобы с одной пневмоточки охватывалась максимальная площадь и несколько помещений, поэтому часто розетки устанавливают рядом с дверями или проемами.

Стоить заметить, что в частном строительстве проект магистрали далеко не всегда обязателен. Если заказчик четко понимает, что встроенный пылесос спокойно расходится с другими магистралями, и его без проблем можно укладывать в оговоренной плоскости, то достаточно разметить только расположение пневмоточек. Монтажники сами определят наиболее оптимальную траекторию и уложат пневмотрассу без конфликтов с другими сетями.
Имея в распоряжении проект пневмомагистрали или план расположения точек встроенного пылесоса, можно приступать к монтажу системы. У каждого строителя свои методики, приемы и привычки, здесь же мы опишем алгоритм и технологии монтажа централизованной системы пылеудаления, которых придерживаются наши специалисты. Зайдя на объект, в первую очередь следует «прочертить в голове» будущую магистраль и убедиться, что на участках штробления нет скрытой проводки, в точках сверления через стены и перекрытия нет канализации и т.д. Убедившись в безопасности проведения демонтажных работ, можно приступать к сверлению и штроблению стен и перекрытий.

После окончания всех пыльных работ следует этап склейки пневмотрассы. Длинна одной трубы составляет два метра, материал – ПВХ, режется она либо специальным резаком для труб, либо болгаркой с тонким диском по металлу. Для удаления заусениц края реза обрабатываются фаскоснимателем. Все соединения магистрали склеиваются специальным клеем. Он наносится на внутреннюю часть соединения, «папу», чтобы клей выдавливало наружу, а не во внутрь трубы. Закрепляется магистраль специальными пластиковыми хомутами. Параллельно с трубой от пневмоточек к силовому агрегату прокладывается двухжильный кабель управления, удобно использовать гибкий и мягкий провод ШВВП.

По окончании монтажа проводится проверка пневмотрассы на герметичность, кабеля на целостность. Производители силовых агрегатов рекомендуют следующий метод проверки герметичности магистрали. Сначала измеряется значение разрежения на неподключенном силовом агрегате, потом пылесос подключается к пневмотрассе, измеряется разряжение на любом конце магистрали. Разница между значениями не должна превышать 10%. Метод прост, но недостаточно надежен. Нами же используется метод опрессовки вакуумным насосом низкой производительности. К одному концу магистрали подключается вакуумный насос, на остальные концы ставятся герметичные заглушки. Значения разряжения должно дойти до определенного уровня, в зависимости от общей длины магистрали. При наличии малейших щелей или повреждений в трассе стрелка вакуумметра даже с места не сдвинется. Очень точный и надежный способ убедиться в целостности магистрали.

Как правило, на этом моменте заканчивается первый этап работ по установке централизованной системы пылеудаления. Можно продолжать строительство, заливать стяжку, штукатурить и шпатлевать стены и т.д. Второй этап монтажа встроенного пылесоса наступает после окончания отделки помещений. На покрашенную / оклеенную стену устанавливаются пневморозетки и аксессуары, вешается силовой агрегат системы.
